สร้างบ้านชั้นเดียวสไตล์โมเดิร์น หลังคาเพิงหมาแหงน
ไอเดียตกแต่งบ้านและบ้านเดี่ยว ราชพฤกษ์ วันนี้ขอนำเสนอบ้านสไตล์โมเดิร์นชั้นเดียว หลังนี้ เน้นการออกแบบด้วยเส้นสายบบเรขาคณิต พร้อมหลังคารูปทรงเพิงหมาแหงน โดยมีการเลือกใช้วัสดุที่ให้ความรู้สึกที่อบอุ่น อย่างเช่น ผนังฝาไม้ใต้ฝ้าหลังคา และระแนงปูนสีส้มที่พาดเป็นแนวตั้งที่หน้าบ้านหลังนี้ ช่วยเสริมความโดดเด่นที่มีให้กับรูปลักษณ์ภายนอกได้มากยิ่งขึ้น
บริเวณของฐานตัวบ้านมีการเลือกที่ได้ใช้โทนสีที่แตกต่างจากวัสดุอื่นๆ โดยมีตรงฐานบ้านการเลือกใช้เป็นโทนสีน้ำเงินเข้มที่ให้ความรู้สึกที่เย็น ซึ่งตัดกันดีกับวัสดุผิวไม้ ส่วนบริเวณฐานระเบียงจะเลือกใช้เป็นกระเบื้องลายอิฐสีน้ำตาลแทน
เมื่อเข้ามาภายในบ้านจะเห็นว่ามีการออกแบบให้เป็นผนังสีขาวสว่างตา ซึ่งช่วยให้บ้านดูมีความโอ่โถงและโปร่งโล่งมากขึ้น เช่นเดียวกับการเลือกออกแบบให้ฝ้าเพดานลึกเข้าไป เพื่อให้บริเวณโถงรับแขกดูมีมิติกว่าเดิม
ในส่วนของห้องครัวจะเห็นว่ามีการออกแบบได้แตกต่างจากห้องอื่น โดยเลือกใช้กระเบื้องที่มีลวดลายเป็นรูปสี่เหลี่ยมข้าวหลามตัดแบบเรียงห่างกัน ส่วนพื้นห้องครัวมีการเลือกใช้เป็นกระเบื้องสีครีมขัดเงา ที่เข้ากับบานประตูเคาน์เตอร์
ห้องน้ำของบ้านหลังนี้ที่มุ่งเน้นใช้ผนังในโทนสีขาว แล้วเพิ่มเติมรายละเอียดด้วยกระเบื้องที่เรียงกันเป็นลวดลาย ซึ่งพอดูไปแล้วเข้าชุดกับสุขภัณฑ์ภายในห้องน้ำ อีกทั้งยังมีอ่างล้างหน้าแบบลอยตัวช่วยให้ห้องดูโดดเด่นมากขึ้น
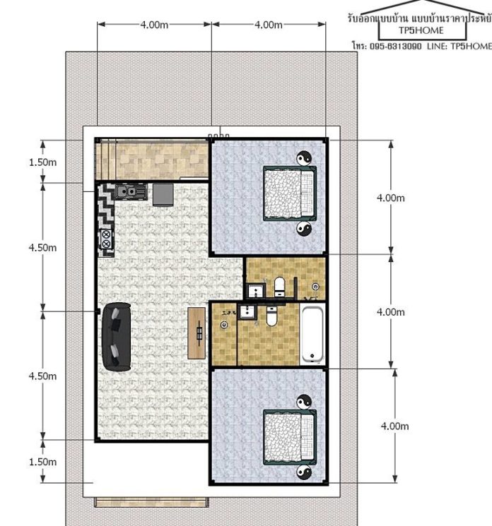
บ้านตกแต่งในสไตล์โมเดิร์นโทนสีอบอุ่นหลังนี้ภายในประกอบไปด้วยทั้งหมด 4 ห้องนอน 2 ห้องน้ำ ห้องโถง ห้องครัว ห้องพระ พื้นที่การใช้สอยอยู่ที่ 149 ตารางเมตร
ที่มา : SK Home

















































































